

胡亂拆墻等于拆家
當裝修新居或者改造舊房的時候,我們不可以一味的追求空間的寬敞,而隨意對房屋結構實行修改,忽視了更為重要的裝修安全要素。尤其是在改變墻體的時候,不可以盲目地拆除與破壞,這些都關系到抗震等級和使用安全。
那么,裝修哪些墻可以拆,裝修拆墻注意事項有哪些?
跟著小編一起來看看吧
承重墻
承重墻指支撐著上部樓層重量的墻體,在工程圖上為黑色墻體,打掉會破壞整個建筑結構,影響樓層承重。
如何分辨承重墻
首先,厚實線部分的非軸承梁結構圖和墻下的環梁結構是承重墻。在沒有預制梁的墻上的現場試驗當然是軸承壁。非承重墻在圖中的細線或虛線,對于輕型,簡單的材料制成的墻壁,非承重墻壁一般較薄,只能做隔墻。墻體厚度在24cm以上,多為承重墻,不得拆卸。

看戶型圖
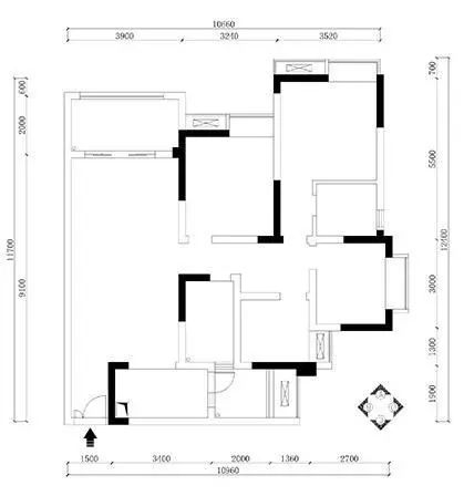
在房屋戶型圖中,工程圖上標注為黑色的墻體都是承重墻;標注為白色部分的墻體為非承重墻,這類墻體可以改造拆除,對房屋建筑不會有影響。

看房屋結構
一般來說,磚混結構的房屋所有墻體都是承重墻??蚣芙Y構的房屋外墻為承重墻,內部的墻體一般都不是承重墻。

一般低矮的住宅樓、平房和別墅都是磚混結構,每一面基本都是承重墻。而高層電梯樓、洋樓多數都是框架結構。

測厚度、聽聲音
非承重墻一般厚度在10厘米左右,如衛生間、廚房出現較多。業主們可以用手拍一拍,有清脆的大回聲多為輕體墻,而承重墻一般厚度在24厘米以上,敲擊起來應該沒什么太大的聲音。

陽臺的半截墻
不少業主認為陽臺半截墻的作用不大,阻擋了陽光進入室內,想改造成落地窗的形式。這是萬萬不可取的,這段墻叫“配重墻”,它像秤砣一樣起著挑起陽臺的作用。拆改這堵墻,會使陽臺的承重力下降,還可能導致陽臺下墜。

頂部的梁、柱
梁是橫在房屋頂部,與地面水平,起到平衡作用的結構。
柱是與房屋地基豎直,起到支撐保護作用的結構。

這些梁柱是用來支撐上層樓板的,拆掉后上層樓板會掉下來,所以也不能動。如果你實在覺得橫梁太影響美觀度了,可以利用吊頂把橫梁隱藏起來。

入戶門的門框
這些入戶門的門框是嵌在混凝土中的,如果拆改,會破壞建筑結構,降低安全系數。一旦破壞了門口的建筑結構,重新安裝新門就更加困難了。

墻體中的鋼筋
當墻壁裝飾墻壁可能會在鋼筋墻壁遇到時,有些人直接切斷,短期內看不到有什么問題,但整體建筑面臨巨大的安全隱患。
當你在墻上切割時,墻壁將不可避免地會破壞鋼筋,結果是墻體承受能力下降。 如果遇到自然災害,如地震,強化墻體和地板的破壞容易崩潰或破裂。

燃氣管道、燃氣閥門
廚房燃氣設施在設計、安裝上有嚴格的技術規范和安全要求,必須由專業人員進行施工。私自拆改燃氣管道、包封燃氣閥門很容易造成燃氣泄漏。

暖氣管道,上下水管道
在北方裝修的朋友拆改暖氣管道,上下水管道的情況較為普遍。暖氣管道及上下水管道都有個共同特點,就是這些管道都是在一定范圍內構成一個整體系統,各家各戶無法完全獨立。
因此在對這樣的管道進行改造的時候,應請專業人士,至少保證所有的改造不影響整個系統為前提。

衛生間和廚房的防水層
衛生間和廚房的下面都有防水層,如果破壞了,樓下就會變成“水簾洞”。所以裝修的朋友們在更換地面材料時,一定注意不要破壞防水層。如果破壞需要重新修建,一定要做“24小時防水實驗”即在廚房或衛生間中灌水,如果24小時后不滲漏才算合格。

很多業主都會有這樣的觀念:房內的承重墻不能拆,非承重墻都可以拆,這其實是一個大誤區。事實上,并不是所有的非承重墻都可以隨意拆改。非承重墻墻體同樣具有墻體自重的支撐作用和抗震作用。所以,就某一家庭來說,拆除非承重墻或在墻上打個洞沒有太大問題,但如果整棟樓的居民都隨意拆改非承重墻體,將大大降低樓體的抗震能力。