
從業時間 12年
設計理念 用心觀察生活,感悟人生真諦,讓設計與生活互動
擅長風格 現代風格、美式風格、北歐風格、歐式風格、中式風格等

項目地址 保億湖山鹿鳴
項目面積 136m²
設計風格 現代
常住人口 2人


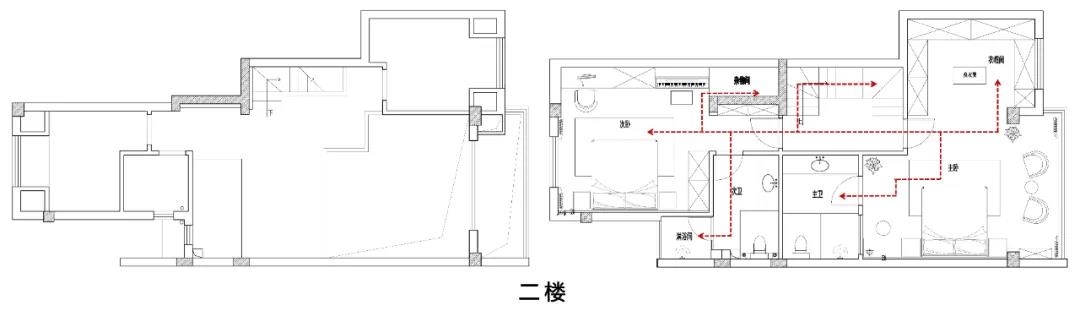
Second floor distribution master bedroom, second bedroom two bedrooms, a rest area for the client. The master bedroom is equipped with an independent bathroom and walk-in cloakroom to meet the needs of the elderly for washing and changing clothes. Admire defend area of stage basin, shower and closestool space into 3 areas, convenient use also be to accomplish dry wet separation at the same time, made sure the cleanness of toilet.


The first floor is the living area, and the oversized meeting room gives people a sense of spacious atmosphere. Because consider permanent living population is not much, and it is two old people, food is relatively delicate, do not need particularly much cooking function relatively for, also won't produce particularly much lampblack, use the design of open mode kitchen so, dining-room and kitchen are connected as an organic whole, also be to reduce a space to break up, convenient old people walk, have dinner.
·案例賞析·



·會客廳·
·living room·
在會客廳的設計上,采用當下現代風格設計中流行的無主燈方案,配合超大的觀景落地窗,讓室內的光線明亮柔和而不刺眼。色彩搭配上,選擇深淺結合的方式,深的是木紋、淺的是大理石和皮質沙發,組合出略帶奢華、但又低調內斂的空間氛圍。

·餐廳·
·Dinner room·
Considering the relatively small number of permanent residents and diners, we only choose a table for four people, which meets the daily needs of customers and is also convenient for the display of dishes and table care. "L" model kitchen design, move line is fluent, area is wide, reduce the possibility that produces collision, reflect what we take "with person this" design concept and care to the old person.

·次臥·
·Second bedroom·
次臥是預留給來探望老人的兒女的。因為是年輕人居住,所以在設計上,我們將整體風格定位得更偏向年輕化、浪漫化,暖色系和帶有粉色的空間溫馨美好,滿足年輕人的審美需求。

·主臥·
·Master bedroom·
主臥我們沿用會客廳的設計思路和配色,仍舊是以暖棕色、深南瓜色和米白、暖灰等顏色搭配組合,并選用比較具有藝術感造型的吊燈,讓整個空間在保持屬于家的那份溫馨前提下又有更多的美感。茶幾是為客戶夫妻專門準備的,閑暇時在此小坐品茗,聊聊生活,談談往事,不失為好去處。

·衣帽間·
·Cloak room·
獨立的步入式衣帽間面積寬闊,設計較多的柜子并進行多種分區,方便客戶在此進行更衣和儲存。部分柜體采用玻璃門的設計,通透、有質感。比較高的換鞋凳是出于客戶的年齡的考慮,也是人性化設計的體現。

·主衛·
·Master bathroom·
主衛的設計上,三分隔的設計與懸空的柜體能最大限度減少積水的產生,易于打理和保證衛生間的清潔,大面積的梳妝鏡大方好看。淋浴間特制防滑設計,增大摩擦力,預防老人洗澡時跌倒。
Adopt the design that defends on, the design of 3 disjunction and suspended cabinet body can minimize the generation of seeper, do easily and ensure the cleanness of toilet, the dressing mirror of large area is easy good-looking. Shower room special anti - slip design, increase friction, prevent the elderly fall when taking a bath.